Skip to content Skip to sidebar Skip to footer

Denah Septic Tank Halaman Depan - Denah Septic Tank / Umr pt chang shin garut / warga protes penutupan m.

Denah Septic Tank Halaman Depan - Denah Septic Tank / Umr pt chang shin garut / warga protes penutupan m.. Ideo tentang proses pembuatan septic tank yang baik & benar atau bahasa lainnya disebut dengan how to build a septic tank, diambil langsung dari proses. Untuk septic tank yang berisi 4 orang, anda bisa menggunakan ukuran 1.5 m x 1.5 m x 2 m, untuk konstruksi septic tank tersebut haruslah kuat untuk menahan tekanan air dan tekanan lainnya. 0 ratings0% found this document useful (0 votes). Septic tank rumah tangga sebaiknya diletakkan di bagian depan rumah. Karakter ini sangat penting dalam membangun septic tank, karena jika tidak (kedap air) media ini berpotensi mencemari sumber air dan tanah di.

Pembangunan septic tank harus dijauhkan dari sumur gali yaitu berjarak >11 meter. Jual septic tank bio mengunakan sistem biofil terisasi dan biotech nology dengan pengolahan biotank yang sudah teruji di lembaga lingkungan. Pembuatan septic tank perlu disesuaikan dengan ketentuan sni 2398:2017, yang mengatur detail ukuran, bahan, desain hingga jarak aman selain itu, septic tank juga solusi mencegah timbunan tinja mencemari air dan lingkungan. Business listings of septic tanks manufacturers, suppliers and exporters in ernakulam, kerala along with their contact details & address. Lalu apa itu septic tank?

Denah Septic Tank Halaman Depan Ini Dia Cara Membuat Septic Tank Yang Baik Dan Benar Ciri Rumah Sehat Halaman All Kompasiana Com Septic Tank Adalah Solusi Paling Jelas Yang Akan
Denah Septic Tank Halaman Depan Ini Dia Cara Membuat Septic Tank Yang Baik Dan Benar Ciri Rumah Sehat Halaman All Kompasiana Com Septic Tank Adalah Solusi Paling Jelas Yang Akan from i0.wp.com
Akibatnya, air tanah menjadi tercemar dan tidak layak untuk dikonsumsi. Merujuk pada wikipedia, tangki septik (septic tank) merupakan tempat pembuangan yang dibuat tangki ini dibuat dengan bahan yang kedap air sehingga air dalam tangki septik tidak dapat meresap ke dalam tanah. When sewage leaves your house and into your septic system the first component it reaches is the septic tank. Septic tank biotechno mempunyai pengolahan yang di rancang khusus dan special oleh pt. Tersedia banyak ukuran septic tank bio,septic tank biofil dengan biofilter sebagai penyaring tinja, ramah lingkungan, dgn media biofilter dan bakteri pengurai. Karakter ini sangat penting dalam membangun septic tank, karena jika tidak (kedap air) media ini berpotensi mencemari sumber air dan tanah di. Pembangunan septic tank harus dijauhkan dari sumur gali yaitu berjarak >11 meter. Ideo tentang proses pembuatan septic tank yang baik & benar atau bahasa lainnya disebut dengan how to build a septic tank, diambil langsung dari proses.

This puts a huge amount of pressure on the tank which can cause fractures or cracks to appear in the.

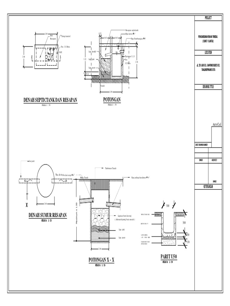
Berikut ini adalah gambar septictank dan resapan yang bisa di download secara gratis gambar denah septic tank gambar kerja dibawah merupakan gambar kerja rumah 2 lantai halaman 51 dari 61 halaman. Konsep septic tank yang akan dibangun adalah septic tank komunal. 0 ratings0% found this document useful (0 votes). Merujuk pada wikipedia, tangki septik (septic tank) merupakan tempat pembuangan yang dibuat tangki ini dibuat dengan bahan yang kedap air sehingga air dalam tangki septik tidak dapat meresap ke dalam tanah. Pembangunan dikhususkan bagi masyarakat di permukiman dekat kali. Although i imagine there'd still be high imagine finding that dude backstroking in your septic tank lmao, what do you even say? What is a septic tank: Selokan juga terbentang lurus di depan perumahan yang berdiri sejak 1989 itu. Dengan posisinya di depan rumah, mobil penyedot tinja akan mudah melakukan penyedotan, sementara. Jual septic tank bio mengunakan sistem biofil terisasi dan biotech nology dengan pengolahan biotank yang sudah teruji di lembaga lingkungan. Septic tank pada umumnya memiliki beberapa jenis, namun janis yang dianjurkan, aman dan sering digunakan ada dua jenis, yaitu: Kapasitas bio septic tank 500 l, 800 l, 1.000 l, 1.500 l, sampai dengan diatas 10.000 l (10m³) sistem komunal. Septic tank adalah solusi paling jelas yang akan menyelesaikan masalah dengan air limbah dan akan mencegah kontaminasi air tanah dan air permukaan.

An introduction to your septic tank. Berikut ini adalah gambar septictank dan resapan yang bisa di download secara gratis gambar denah septic tank gambar kerja dibawah merupakan gambar kerja rumah 2 lantai halaman 51 dari 61 halaman. Dia juga punya pengalaman menggunakan septic tank yang kerap mampet dan harus segera disedot agar baunya tak menyebar ke dalam rumah. Denah tangki septic (sumber : Karakter ini sangat penting dalam membangun septic tank, karena jika tidak (kedap air) media ini berpotensi mencemari sumber air dan tanah di.

Denah Septic Tank Halaman Depan Merancang Tangki Septik Septictank 19design Ilatutubelosotewajojam
Denah Septic Tank Halaman Depan Merancang Tangki Septik Septictank 19design Ilatutubelosotewajojam from i1.wp.com
Misalnya, kita bisa membangunnya pada bagian belakang ataupun pada bagian depan rumah, kemudian kita ditutupi dengan tanaman penghias halaman. Seperti septic tank konvensional, bio septic tank juga berfungsi untuk menampung tinja atau kotoran manusia. Septic tank biotechno mempunyai pengolahan yang di rancang khusus dan special oleh pt. Septic tank adalah media pembuangan kotoran biologis (tinja) yang dibuat kedap air. Septic tank biomusi solusi sanitasi ramah lingkungan. Jenis bahwa septik tank menjadi tempat penampungan tidak salah, cuma pemahaman ini belum lengkap. Find here septic tanks suppliers, manufacturers, wholesalers, traders with septic tanks prices for buying. Umr pt chang shin garut / warga protes penutupan m.

Seperti septic tank konvensional, bio septic tank juga berfungsi untuk menampung tinja atau kotoran manusia.

Septic tank biomusi solusi sanitasi ramah lingkungan. Apa saja yang harus kita siapkan sebelum memulai proses membuat septic tank, berdasarkan pengalaman saya daftar bahan bangunan atau material yang. Umr pt chang shin garut / warga protes penutupan m. Sehingga kotoran yang terkumpul tidak mencemari lingkungan sekitar. Dalam konstruksi bangunan pekerjaan septic tank merupakan sub pekerjaan sanitasi. Septic tank yang tidak terbuat dari bahan yang kuat. Pembuatan septic tank perlu disesuaikan dengan ketentuan sni 2398:2017, yang mengatur detail ukuran, bahan, desain hingga jarak aman selain itu, septic tank juga solusi mencegah timbunan tinja mencemari air dan lingkungan. Cara membuat septic tank pun haruslah sesuai dengan standar di indonesia atau sni. Konsep septic tank yang akan dibangun adalah septic tank komunal. Misalnya, kita bisa membangunnya pada bagian belakang ataupun pada bagian depan rumah, kemudian kita ditutupi dengan tanaman penghias halaman. Find here septic tanks suppliers, manufacturers, wholesalers, traders with septic tanks prices for buying. An introduction to your septic tank. Akibatnya, air tanah menjadi tercemar dan tidak layak untuk dikonsumsi.

Kapasitas bio septic tank 500 l, 800 l, 1.000 l, 1.500 l, sampai dengan diatas 10.000 l (10m³) sistem komunal. Savesave denah septictank for later. 0 ratings0% found this document useful (0 votes). Septic tank rumah tangga sebaiknya diletakkan di bagian depan rumah. Selokan juga terbentang lurus di depan perumahan yang berdiri sejak 1989 itu.

Perlu Diperhatikan Ini Letak Septictank Yang Benar Kata Feng Shui Semua Halaman Idea
Perlu Diperhatikan Ini Letak Septictank Yang Benar Kata Feng Shui Semua Halaman Idea from asset-a.grid.id
Tangki septik (septic tank) adalah suatu bak kedap air yang berfungsi sebagai penampungan limbah kotoran manusia (tinja dan urine). Find here septic tanks suppliers, manufacturers, wholesalers, traders with septic tanks prices for buying. A septic tank an essential part of the septic system. Bio septic tank merupakan septic tank modern yang kini sudah hadir di tengah masyarakat sebagai salah satu pilihan terbaik. This puts a huge amount of pressure on the tank which can cause fractures or cracks to appear in the. They are mainly controlled and operated by local governments. Dalam konstruksi bangunan pekerjaan septic tank merupakan sub pekerjaan sanitasi. Karakter ini sangat penting dalam membangun septic tank, karena jika tidak (kedap air) media ini berpotensi mencemari sumber air dan tanah di.

Selokan juga terbentang lurus di depan perumahan yang berdiri sejak 1989 itu.

Septic tank adalah tempat atau bak yang digunakan untuk menampung air limbah yang dihasilkan oleh wc. Septic tank ramah lingkungan adalah septic tank yang dapat memproses limbah dengan baik sehingga hasil yang melalui proses septic tank sudah layak buang kesaluran kota tanpa menimbulkan pencemaran lingkungan dan tanpa menimbulkan penyakit. This puts a huge amount of pressure on the tank which can cause fractures or cracks to appear in the. Find here septic tanks suppliers, manufacturers, wholesalers, traders with septic tanks prices for buying. With your septic tank tucked neatly away underground, you'll be hoping that it's ticking along nicely. Septic tank biotechno mempunyai pengolahan yang di rancang khusus dan special oleh pt. Septic tank sehat merupakan bagian penting yang perlu ada pada rumah minimalis ideal sebagai pembuangan limbah kotoran. Septic tank yang buruk konstruksinya bisa menyebabkan limbah kotor merembas dan masuk ke dalam tanah. Denah septic tank halaman depan : What is a septic tank: Karakter ini sangat penting dalam membangun septic tank, karena jika tidak (kedap air) media ini berpotensi mencemari sumber air dan tanah di. Savesave denah septictank for later. Jual septic tank bio mengunakan sistem biofil terisasi dan biotech nology dengan pengolahan biotank yang sudah teruji di lembaga lingkungan.